площадью 68,20 м2, по цене 2586800 по адресу Сарапул - Ленина улица,1

Цена 2 586 800 р.
Адрес Сарапул, Ленина улица,1
Площадь помещения 68,2 м2
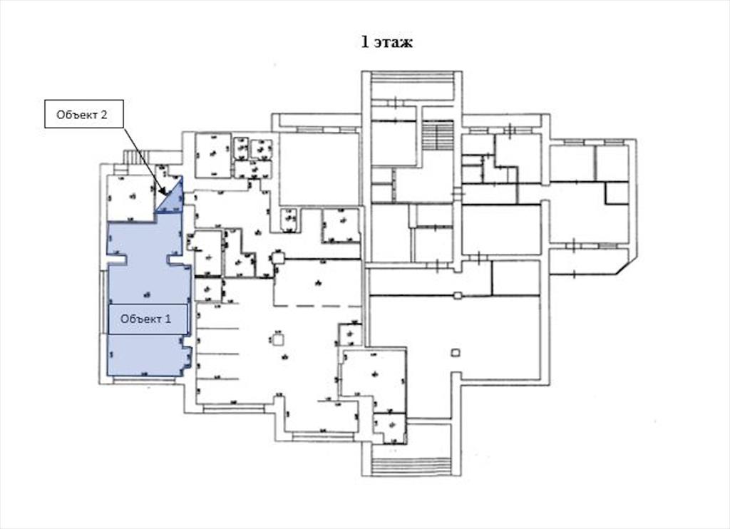
Сбер А предлагает к реализации нежилое помещение площадью 68,2 кв.м., расположенного по адресу: Удмуртская Республика, г. Сарапул, ул. Ленина, д. 1 Реализация посредством проведения торгов на электронной площадке Сбербанк-АСТ. Номер процедуры: SBR065-2508280003 Ссылка на торги: https://utp.sberbank-ast.ru/Property/NBT/PurchaseV iew/43/0/0/3377542 Собственник: Волго-Вятский банк ПАО Сбербанк О лоте: Объект № 1: Недвижимое имущество ориентировочной площадью 68,2 кв.м: Этажность: 1 Кадастрвоый номер: 18:30:000071:413 Объект №2: 1/2 доли нежилого помещения общей ориентировочной площадью 6,4 кв.м., площадью 3,2 кв.м Обратная аренда: нет Особые условия: Отложенные условия по передаче Имущества Покупателю не позднее 9 (Девяти) месяцев с даты заключения Договора (для целей проведения кадастровых работ), остальные условия указаны в "Аукционной документации" к лоту Дополнительная информация, документы и условия реализации указаны на площадке в разделе «Документы». По всем вопросам, связанным с лотом, обращайтесь в рабочее время по телефону с 09:00 до 18:00 по МСК.
Объявление № 23216309
Дата подачи:
5 сентября 2025 г. 13:27
Дата обновления:
5 сентября 2025 г. 0:00
Просмотров 24 Хотите продать быстрее?

Продавец
Яна СБЕРБАНК АСТ
Показать номер телефона
Пожаловаться
Комментарии:
Добавить